语言选择:
中文版
ENGLISH
首页
关于我们
公司简介
实景设备
荣誉证书
产品中心
工业
农业
商业
集装箱
金属制品
建筑材料
粉末喷涂
解决方案
定制流程
安装指南
航运政策
设计实力
案例展示
钢结构
集装箱
信息中心
最新动态
产品知识
常见问题
联系我们
当前位置 >
首页
>工艺流程
关于我们
公司简介
工厂实景
荣誉证书
联系我们
佛山市胜邦钢结构有限公司
地址:广东省佛山市南海区狮山镇官窑石澎村平塘工业区
电话:0757-81002668/0757-63323396
传真:0757-81196682
联系人:梁先生/Mr Leung
手机:18900873383/18900873268
邮箱:
sbs@sbsprefabhouse.com
Skype:
sbs-Candy
网址:http://www.sbshouses.com
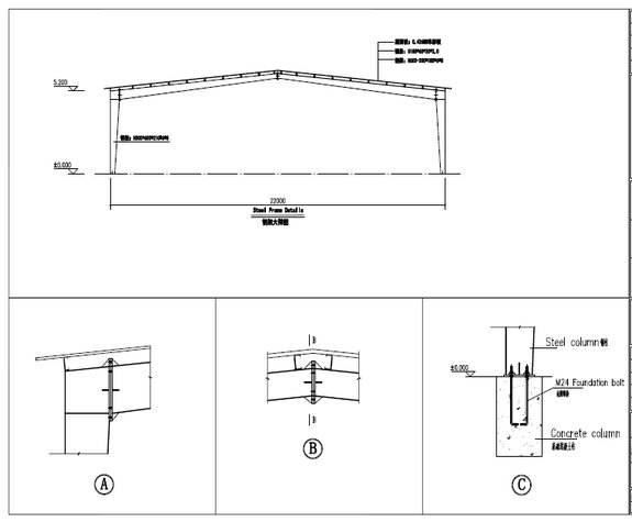
设计图
生产图
备料
多头数控CNC切割机
组立
自动埋弧焊接
翼缘板调直
铆工制作
焊接
第1页
1
2
3
下一页
版权所有:佛山市胜邦钢结构有限公司 Foshan Shengbang Steel Structure Co., Ltd.
粤ICP备13078463号